La primera fundació
jerònima de l’antiga Corona d’Aragó es va fer al País Valencià. Fou erigida l’any
1374 als peus del Montgó, després de rebre consentiment del papa Gregori XI. Sant
Jeroni de la Plana de Xàbia (Marina Alta), va ser però una fundació efímera,
una incursió de pirates barbarescs produïda pocs anys després de la seva
fundació, l’any 1386, va suposar la captura de la comunitat i la seva posterior
venda com esclaus a Bugia. En definitiva, un veritable cop de mort per al novell cenobi. Actualment, aquest
indret ocupat per un Santuari, anomenat Nostra Senyora del Àngels, serva molt
pocs records del primerenc monestir jerònim.
La irrupció corsària
comportà la mort del prior i la captura de vuit monjos de la comunitat, sols
tres aconseguiren fer-se escàpols. Pocs anys després, l’any 1388, els monjos
foren rescatats per Alfons el Vell, duc de Gandia, però ja no volgueren tornar
al seu lloc d’origen, conscients de la inseguretat del lloc per la seva
proximitat al mar. Sol·licitaren a l’aristòcrata, la possibilitat d’establir-se
en un indret més segur per continuar amb la seva vida cenobítica.
El nou indret
escollit, a prop de Gandia, dins l’actual municipi d’Alfauïr (La Safor), fou on
els monjos bastiren aquest nou cenobi, anomenat Sant Jeroni de Cotalba. Monestir
que bé es pot considerar el veritable nucli fundacional de tots els monestirs
jerònims de la Corona d’Aragó.
Lluís Jordà i Roselló
Enumerem breument
els monestirs i les seves dates de fundació.
SANT JERONI DE COTALBA (Alfauïr). Fundat l’any 1388. Promogut a instàncies d’Alfons el Vell duc de Gandia i pel seu majordom Pere Marc, pare del poeta Ausiàs March. Posteriorment els valedors del monestir serien la família Borja i la duquessa de Gandia, Maria Enríquez de Luna. És un dels monestirs més notables del País Valencià i casa mare de moltes les fundacions de la Corona d’Aragó. El monestir de Cotalba fou preservat de la ruïna, arran de la seva adquisició per la família Trenor, després de la desamortització de l’any 1835, família que encara a dia d’avui ostenta la seva propietat i custòdia.
SANTA MARIA DE
LA MURTA (Alzira). Fundat l’any 1401. Va néixer
auspiciat pel monestir de Sant Jeroni de
Cotalba. La seva obra té una important empremta gòtica. Van participar en la
seva construcció reconeguts mestres d’obres com Jaume Gallent. Va rebre en el
transcurs del segle XVI importants donacions de la família Vic i la família Vilaregut.
El cardenal Cisneros confessor de la reina Isabel de Castella també, entre
d’altres personatges de gran rellevància política. Va atresorar importants
obres artístiques, distribuïdes entre importants museus de l’estat, com el Museu
de Belles Arts de Sant Pius de València i el Museu del Prado de Madrid. Altres
es van perdre per sempre arran de la desamortització de 1835 que va comportar
la ruïna completa del conjunt monacal.
SANTA
MARIA DE L’ESPERANÇA (Sogorb). La seva fundació, amb moltes
reserves per manca de dades, seria en una data aproximada a l’any 1495,
promoguda pel primer duc de Sogorb, Enric d’Aragó i Pimentel obtenint una
butlla del Papa Alexandre VI. “la cual
apenas concedida, tomó aquel posesión en unión de los PP. Fr. Juan Bautista
Villarragut, profeso de la Murta y Prior de Santa Engracia en Zaragoza, Fr.
Francisco Micó Prior de Gandía”. És a dir dels monestirs de la
Murta, Santa Engràcia i Cotalba. El mateix infant va fer un important llegat de
més de 3.000 ducats responsabilitzant-se de la continuació de les obres del
monestir, com el refectori i la llibreria tot i que no va acabar les obres de
l’església. Aquestes obres es portaren a terme en absència de la comunitat que
davant la provisionalitat de la situació havia abandonat el monestir. L’acabament
de les obres no es va produir fins l’any 1573 quan Alfons el net del fundador les
va concloure, moment aquest que suposar el retorn dels monjos al cenobi. Durant
el segle XVIII el monestir de Nostra Sra. de l’Esperança va tenir un gran
desenvolupament, truncat definitivament amb la desamortització de l’any 1835.
Refugi de partides carlines i pedrera dels veïns dels voltants. Va ser venut a
mans privades per l’estat l’any 1844. Al cap de pocs anys tot el conjunt
d’edificis eren enderrocats per l’aprofitament de tots els materials d’obra,
excepte l’ermita adjacent que va ser restaurada l’any 1858.
SANTA VERÒNICA (Alacant). Fundat l’any 1492. Originalment
pertanyent a l’orde jerònim, l’any 1518 va ser refundat per les monges de Santa
Clara. L’obra del monestir és molt posterior a la fundació jerònima. Actualment,
des de l’any 2019 tenen cura d’aquest monestir canoneses regulars lateranenques
de Sant Agustí.
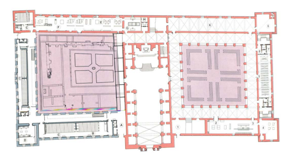
SANT MIQUEL DELS REIS (València). Fundat l’any 1546 és l’actual seu Biblioteca Valenciana. En origen l’indret d’aquest monestir va correspondre a una fundació cistercenca anomenada Sant Bernat de Rascanya. A instàncies de Germana de Foix que volia ser sebollida en aquest monestir, el cenobi cistercenc és reconvertí en jerònim segons deixà escrit en el seu testament l’any 1536. L’any 1545 el papa Pau III emet una butlla a través de la qual s’aconsegueix el traspàs del monestir d’un orde a l’altre. A partir d’aquest moment passa a anomenar-se Sant Miquel dels Reis abandonant el seu nom original. El monestir s’amplià a instancies del duc de Calabria, Ferran d’Aragó, marit de Germana de Foix que va voler seguir amb el que la seva esposa havia estipulat. En la seva reconstrucció van intervenir dos importants arquitectes, Alonso de Covarrubias i Joan de Vidaña. El projecte preveia la reconstrucció de l’església gòtica cistercenca i nou claustre al sud del conjunt, mantenint al costat nord el claustre original de Sant Bernat de Rascanya. Les obres, amb variacions, no es finalitzaren fins l’any 1607. Amb la desamortització de 1835, el conjunt passà a l’estat, les obres d’art al Museu de Belles Arts de València, mentre que els llibres del duc de Calabria van passar a la Biblioteca de la Universitat. Venut el monestir a un particular l’any 1843, la seva demolició fou evitada in-extremis gràcies a l’Ajuntament de València que l’adquirí i el destinà a asil, presó de dones i posteriorment a magatzem. Les obres de conversió de l’espai als nous usos comportaren una alteració greu de la seva estructura monacal. Reconvertit en centre presidiari i de repressió després de la guerra civil, no és fins l’any 1962 que torna a mans de l’Ajuntament de València. Amb l’adveniment de la democràcia, l’any 1997 és finalment adaptat com a seu de la Biblioteca Valenciana.




Comentaris
Publica un comentari a l'entrada